Apartment 2 bedroom Les Belleville
Reference : 84036
Add dates
Arrival
Departure
Nbr. Pers.
Adults
Children
Babies
6 people maximum occupancy
Add dates
Need help to book?
+33 (0) 614 394 144
Tenants usually like :
- Close to Ski school
- ski-in ski-out
General description
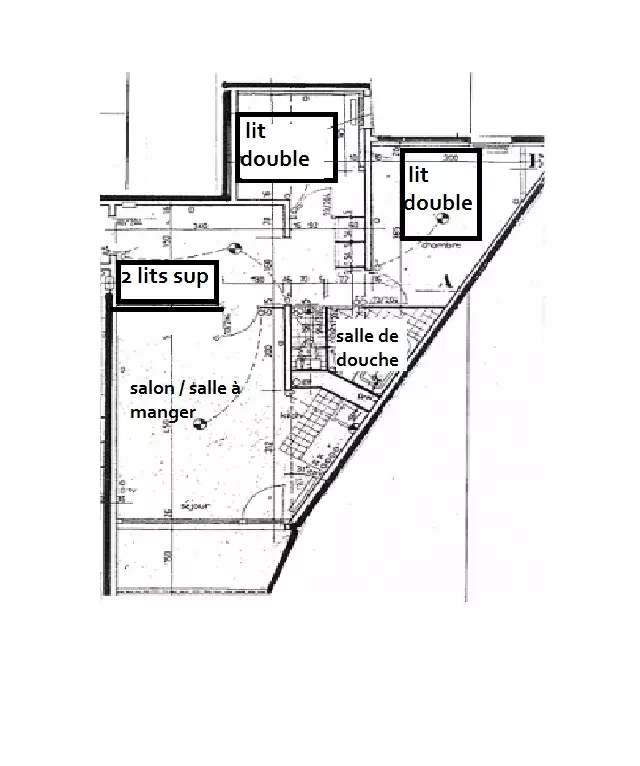
- Apartment - 55m²
- 2 bedroom
- 6 persons
- Ground floor 1
- Balcony
- Wi-Fi
- Pets not allowed
Bedding and bathroom
- 6 Beddings
- 2 double beds
- 2 Single beds
- 1 Bathroom
- hair dryer
Equipped kitchen
- Toaster
- Micro Waves
- Dishwasher
- kettle
More +
Comfort and Leisure
- Hearting
- Television
The owner's note, Lola
This 55m2 apartment, completely renovated with quality materials, is on the 4th floor and has a south-west facing balcony with a beautiful view of the mountains and the village.
It has 2 bedrooms with double bed and 2 bunk beds in the entrance.
The toilet and shower room are separate.
The kitchen is equipped with a refrigerator, hotplates, an oven and a dishwasher.
apartment highly appreciated by our customers
sheets, towels, end-of-stay cleaning, parking not included, upon reservation and subject to availability 7 days before your arrival
More +
Grande Rue Val Thorens 73600 Les Belleville
Local activities
- Ski & snowboard school : 0.2km
- Ski sloops : 0.03km
Calendar update 6 hours ago
- Time
-
Arrival 17:00
Departure 10:00 - Cancellation
- Full refund 14 days
- Payment terms
- 30% upon booking
Balance 30 days before - Security deposit
- 1000€
Travel Safe! Your reservations are systematically insured in case of cancellation.
Pay only 30% upon reservation, the remaining amount of your stay is paid prior your arrival.
Together is better, to reserve in France, favor the services of a Local and French booking platform.
Secured payment through Societe Generale Bank: VISA, AMEX, Master Card and wire transfer upon demand.

