Apartment 1 bedroom Les Belleville
Reference : 82488
Add dates
Arrival
Departure
Nbr. Pers.
Adults
Children
Babies
4 people maximum occupancy
Add dates
Need help to book?
+33 (0) 614 394 144
Tenants usually like :
- Close to Ski school
- ski-in ski-out
General description
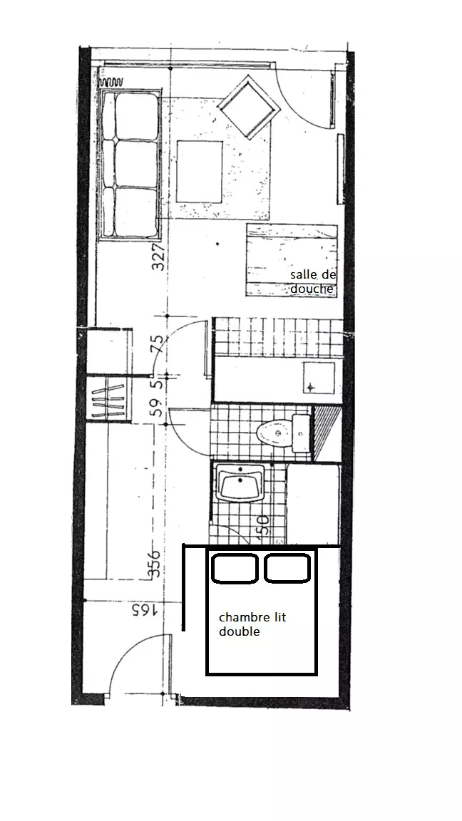
- Apartment - 28m²
- 1 bedroom
- 4 persons
- Ground floor 1
- Outdoors, Balcony
- Pets not allowed
Bedding and bathroom
- 4 Beddings
- 2 double beds
- hair dryer
Equipped kitchen
- Toaster
- Coffee-maker
- Hotplates
- Refrigerator
- Dishwasher
- Vacuum cleaner
- kettle
More +
Comfort and Leisure
- Hearting
- Television
The owner's note, Lola
This fully renovated studio cabin of approximately 28m2 on the 1st floor has a south-west facing balcony with a beautiful view of the Val Thorens resort and the peaks.
It has 1 cabin with a double bed and 1 sofa bed in the living room.
The toilet and shower room are separate.
The kitchen is equipped with a refrigerator, hotplates, an oven and a dishwasher.
sheets, towels, end-of-stay cleaning, parking not included, upon reservation and subject to availability 7 days before your arrival
More +
Grande Rue Val Thorens 73600 Les Belleville
Local activities
- Ski & snowboard school : 0.2km
- Ski sloops : 0.03km
Calendar update 1 day ago
- Time
-
Arrival 17:00
Departure 10:00 - Cancellation
- Full refund 14 days
- Payment terms
- 30% upon booking
Balance 30 days before - Security deposit
- 600€
Travel Safe! Your reservations are systematically insured in case of cancellation.
Pay only 30% upon reservation, the remaining amount of your stay is paid prior your arrival.
Together is better, to reserve in France, favor the services of a Local and French booking platform.
Secured payment through Societe Generale Bank: VISA, AMEX, Master Card and wire transfer upon demand.
