Apartment 1 bedroom Les Belleville
Reference : 67529
Add dates
Arrival
Departure
Nbr. Pers.
Adults
Children
Babies
3 people maximum occupancy
Add dates
Need help to book?
+33 (0) 614 394 144
Tenants usually like :
- Close to Ski school
- ski-in ski-out
General description
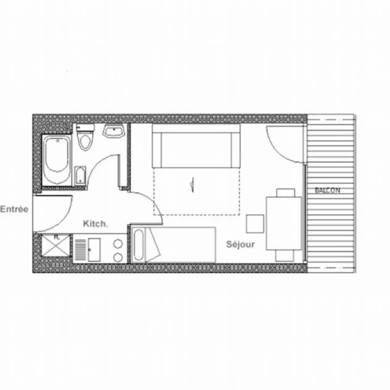
- Apartment - 22m²
- 1 bedroom
- 3 persons
- Ground floor 1
- Balcony
- Pets not allowed
Bedding and bathroom
- 3 Beddings
- 1 double bed
- 1 Single bed
- 1 Bathroom
Equipped kitchen
- Coffee-maker
- Micro Waves
- kettle
More +
Comfort and Leisure
- Hearting
- Television
- ski locker
The owner's note, Lola
22 m² studio for 3 people, located on the 2nd floor with elevator and a south/west facing balcony.
Living room: 1 double sofa bed + 1 single bed. Equipped with a television.
(carpet floor)
Built-in kitchen with 2 hotplates, refrigerator, oven/microwave combination, toaster, kettle and coffee maker.
Bathroom with bathtub and toilet.
Non-smoking apartment.
Apartment equipped with blankets.
Paid WIFI Station (subject to network coverage)
ski locker: basement
More +
La Croisette 1 Avenue De La Croisette 73600 Les Belleville
Local activities
- Ski & snowboard school : 0.2km
- Ski sloops
Calendar update 2 days ago
- Time
-
Arrival 17:00
Departure 10:00 - Cancellation
- Full refund 14 days
- Payment terms
- 30% upon booking
Balance 30 days before - Security deposit
- 400€
Travel Safe! Your reservations are systematically insured in case of cancellation.
Pay only 30% upon reservation, the remaining amount of your stay is paid prior your arrival.
Together is better, to reserve in France, favor the services of a Local and French booking platform.
Secured payment through Societe Generale Bank: VISA, AMEX, Master Card and wire transfer upon demand.
