Apartment 1 bedroom Les Belleville
Reference : 62838
Add dates
Arrival
Departure
Nbr. Pers.
Adults
Children
Babies
4 people maximum occupancy
Add dates
Need help to book?
+33 (0) 614 394 144
Tenants usually like :
- Close to Ski school
- ski-in ski-out
General description
- Apartment - 36m²
- 1 bedroom
- 4 persons
- Ground floor 1
- Outdoors, Balcony
- Pets not allowed
Bedding and bathroom
- 4 Beddings
- 1 double bed
- 2 Single beds
- 1 Bathroom
- hair dryer
Equipped kitchen
- Toaster
- Coffee-maker
- Hotplates
- Refrigerator
- Dishwasher
- Vacuum cleaner
- kettle
More +
Comfort and Leisure
- Hearting
- Television
The owner's note, Lola
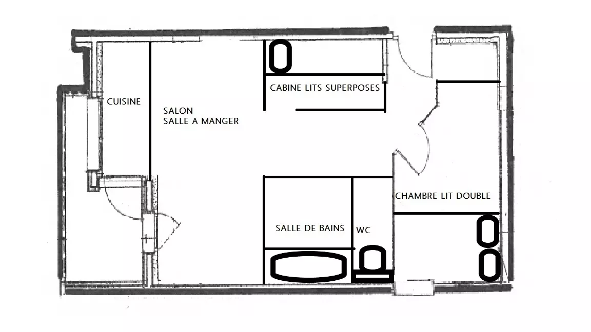
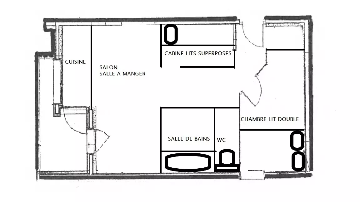
This fully renovated apartment, approximately 35 m2, is located on level -2 of the residence.
It has a double bedroom, a cabin with bunk beds, a living/dining/kitchen area with a south-west facing balcony.
The kitchen is equipped with a fridge, a dishwasher, electric hobs and an oven.
The toilet is separate from the bathroom.
Pets are not allowed
More +
Rue Du Soleil Val Thorens 73600 Les Belleville
Local activities
- Ski & snowboard school : 0.5km
- Ski sloops : 0.05km
Calendar update 1 day ago
- Time
-
Arrival 17:00
Departure 10:00 - Cancellation
- Full refund 14 days
- Payment terms
- 30% upon booking
Balance 30 days before - Security deposit
- 1000€
Travel Safe! Your reservations are systematically insured in case of cancellation.
Pay only 30% upon reservation, the remaining amount of your stay is paid prior your arrival.
Together is better, to reserve in France, favor the services of a Local and French booking platform.
Secured payment through Societe Generale Bank: VISA, AMEX, Master Card and wire transfer upon demand.


