Apartment 1 bedroom La Clusaz
PETITE OURSE
Tenants usually like :
- ski-in ski-out
- Access for disabled
General description
- Apartment - 42m²
- 1 bedroom
- 4 persons
- Children welcome
- Access for disabled
- Outdoors, Balcony
- Wi-Fi
- Pets not allowed
Bedding and bathroom
- 4 Beddings
- 2 Single beds
- 1 Sofa bed
- 1 Bathroom
- 1 Bathroom with shower
- hair dryer
Equipped kitchen
- Oven
- Hotplates
- Refrigerator
- Dishwasher
- Washing machine
- Tumble dryer
- Iron and ironing board
- kettle
Comfort and Leisure
- Hearting
- Television
- ski locker
- Ski boot dryer
The owner's note, Marion
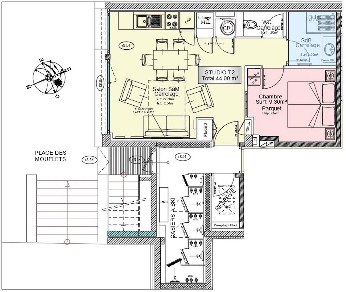
PETITE OURSE - LA CLUSAZ
4 people / 44 m² / 2 rooms classified 3*** NN 4 people / Ground floor / North East / Mini wifi box as an optional charge
Apartment in a residence of 5 apartments, located in the center of LA CLUSAZ. Close to shops, nurseries and activities for children, swimming pool and ice rink open in summer and winter, From the Crêt du Merle chairlift, close to cross-country skiing (at the Beauregard gondola). View on little square with shops.
ENTRANCE with sign
LIVING ROOM: 27.80 m² (tiled floor) 1 extra sofa bed (195 x 140), 2 armchairs, television (https://www.molotov.tv/regarder-tv-gratuite),
EQUIPPED KITCHEN: ceramic hob, fridge (... L) with freezing section (... L), oven, dishwasher, capsule coffee maker, microwave, kettle, toaster, fondue and raclette set
BEDROOM: 9.30 m² (parquet) double bedroom with twin beds (2 90x190 beds), cupboard, canopy overlooking the living room,
SHOWER ROOM: 3.90 m² (tiled), shower, basin, hair dryer, separate WC,
LAUNDRY: washing machine, dryer
Not accessible to people with reduced mobility.
Optional services not included:
- Pet not allowed
- Arrival outside opening hours
To be ordered 10 days before your arrival:
- Mini wifi box, for unequipped apartments, €7/day and €39/week (limited stock)
- Linen rental: sheets, pillowcases, towels, bath mats, tea towels, etc.: to be picked up at the agency on the day of your arrival or picked up at the Pressing des Aravis (20 place Yves Pollet-Villard, at the foot of the residence) , ask us
- Baby equipment: to order and pick up at the Pressing des Aravis
- End of stay cleaning, fixed price depending on the surface of the accommodation (€50 to €250), to be ordered 3 days before departure,
- Pass eXpérience La Clusaz: Alpes immobilier, allows you to benefit from reductions on summer activities in the resort.
Services included:
- Free welcome kit (toilet paper roll, garbage bag, sponge, floor liquid, dishwasher tablets)
- 1 double duvet for 180 beds (240 x 260), 1 double duvet for the 140 cm sofa bed (220 x 240), 2 single duvet for 90 beds (140 x 200), 4 pillows
- Electric heating, water, electricity (except for long-term rentals (charged according to meter reading)
- Bicycle room n°95 P1 Level -2 (L: 2,20m - l: 2,40)
- Ski locker with boot and glove dryers on level 0
Environment
- Train station : 32km
- Airport : 67km
- Shops : 0.4km
- Restaurants : 0.05km
- Village / City centre : 0.01km
- Public transports : 0.7km
Local activities
- Ski lifts : 0.05km
- Time
-
Arrival 16:00
Departure 10:00 - Cancellation
- Cancellation Policy
- Payment terms
- 30% upon booking
Balance 30 days before - Security deposit
- 800€
Overall satisfaction




