Apartment La Clusaz
500 m from the ski lifts, 200 m from the shops
Tenants usually like :
- ski-in ski-out
- Mountain view
- Garage
Conditions for welcoming your dog(s)
- 1 dog max
- Categorized forbidden
- All sizes
- Additional fee
- All ages
General description
- Apartment - 21m²
- Garage
- 4 persons
- Ground floor 3
- Children welcome
- Mountain view
- Balcony, Mountain view
- Wi-Fi
- Pets welcome
Bedding and bathroom
- 4 Beddings
- 1 Sofa bed
- 1 Bathroom
- 1 Bathroom with bath
Equipped kitchen
- Coffee machine
- Coffee-maker
- Oven
- Micro Waves
- Hotplates
- Refrigerator
- Dishwasher
- Iron and ironing board
- kettle
Comfort and Leisure
- Hearting
- Garde table
- Television
- DVD player
The owner's note, Marion
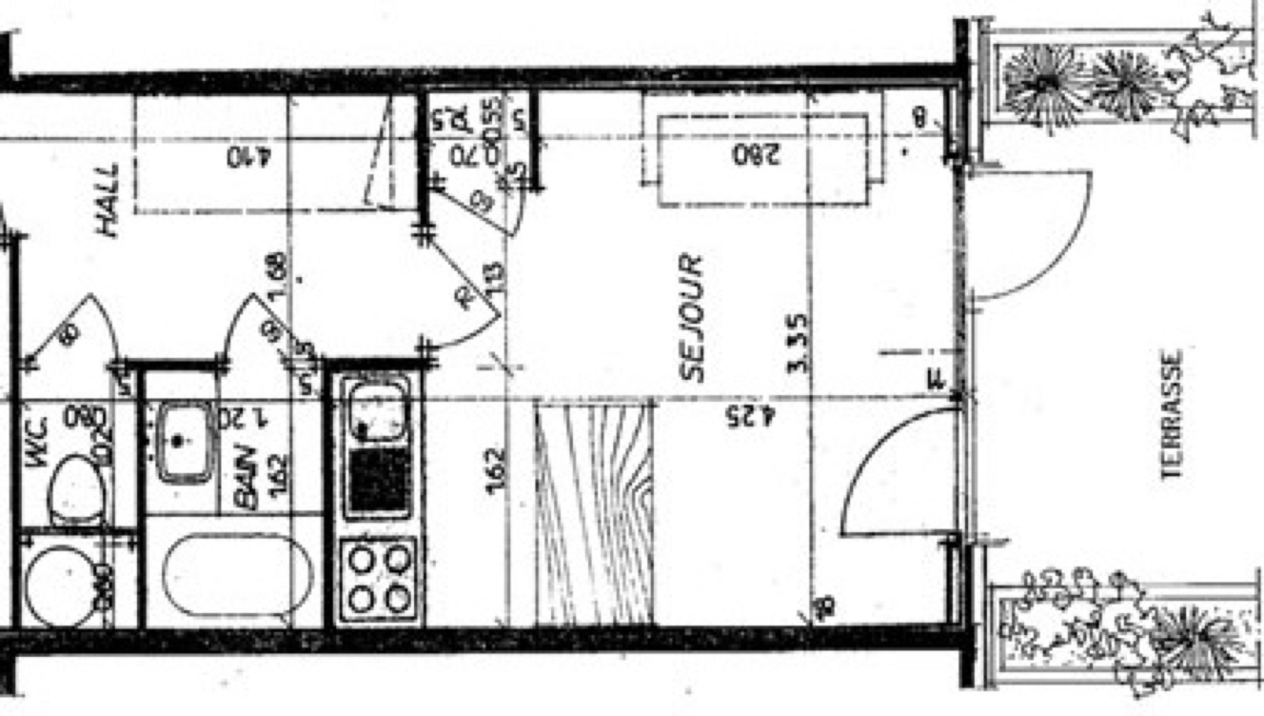
RESIDENCE - Building 2 - Apartment 235 - LA CLUSAZ
4 people / 21m2 / Studio + alcove 2 ** NN / 3rd floor elevator / South / Mini wifi box (paying option)
Set of 4 chalets of 20 apartments, built in 1988, on the road to the pool, 500 m from the ski lifts, 200 m from the shops, south side with a beautiful view of all the surrounding mountains, the slopes and the town. Access to the ski slopes is very easy since the Residence is in the center of the resort, while enjoying the calm.
MOUNTAIN CORNER: 4.59 m2 (plastic floor) 2 bunk beds (80cm) (upper bed forbidden -6 years), storage drawers, wardrobe, separation door with the living room
BATHROOM: 2 m2, bath, washbasin, storage, W.C independent,
LIVING ROOM: 13 m2 (plastic floor) convertible sofa bed 2 persons (130), dining area, television, DVD player, mini channel, balcony south terrace, superb views of the mountains, the village and the slopes,
FITTED KITCHEN: 4 hotplates electric, oven multi functions, dishwasher, refrigerator (100l) conservative, filter coffee maker,
Not accessible to people with reduced mobility.
Optional services not included:
- Pet admitted (limited to one), supplement (25 € / week) to be paid on site
- Arrival outside opening hours
To order 10 days before your arrival:
- Linen rental: sheets, pillowcases, towels, bath mats, tea towels ...: to be taken at the agency on the day of your arrival
- Baby equipment: to order and collect at the Pressing des Aravis
- End-of-stay cleaning, fixed price depending on the size of the accommodation (€ 50 to € 250), to be ordered 3 days before departure,
- La Clusaz eXperience Pass: Alpes Immobilier, gives you a reduction on summer activities at the resort.
Included services:
- Free welcome kit (toilet paper roll, garbage bag, sponge, floor liquid, dishwasher tablets)
- Blankets/duvets and pillows
- Electric heating, water, electricity (except for long-term rentals (billed according to meter reading)
- Closed individual garage n ° 6 level P1 (L4,83- l2,12 - H1,84) - Skis in the garage
- Collective wifi at the residence :
Environment
- Train station : 32km
- Airport : 67km
- Shops : 0.35km
- Restaurants : 0.2km
- Village / City centre : 0.2km
- Public transports : 0.8km
- Ski lifts
Local activities
- Ski lifts
- Spa : 67km
- Ski sloops
- Time
-
Arrival 16:00
Departure 10:00 - Cancellation
- Cancellation Policy
- Payment terms
- 30% upon booking
Balance 30 days before - Security deposit
- 500€
Overall satisfaction



